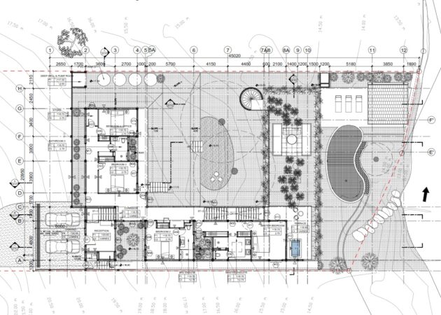
EdenKoh Samui, Thailand 2025A gently sloping site that falls from the access road down to an adjacent river. The site is graced by two 20m tall Mayong Chit trees (plum sized mangoes known for their sweet sour mango taste). Our u-shaped family home wraps around these 2 trees forming both a green courtyard and a river front garden. All the rooms are designed to be visually and physically connected to the gardens so even when indoors, the inhabitants feel connected to nature. A green roof above the living room intertwines with the branches of the 2 feature trees whilst offering high level views of the river, island and the tropical jungle setting. Currently under construction. |
![]() | ![]() | ![]() | ![]() | ![]() | ![]() | ![]() | ![]() | ![]() | ![]() | ![]() |











